есть

3D модель

Игровой комплекс серия D модель 1

Цена
897 470 
Скачать 3D модель

Характеристики

Характеристики
  • Страна производства: Россия
  • Код изделия: Н113864
  • Серия: серия D
  • Масса: 824,6 кг
  • Высота, см: 336 см
  • Ширина, см: 400 см
  • Длина (глубина), см: 584 см
  • Материал: дерево
  • Цвет: коричневый
  • Размещение: на улице
  • Особенности комплектации: рукоход, гладиаторская сетка, горка, скалодром, лестница
  • Возрастная группа: 4-6, 7-10, 11-14
  • Способ установки: на анкера (в комплект не входят)
  • Сертифицированные по ГОСТу: есть
  • Категория:  По ГОСТу, Деревянные, Во двор, С горкой, Детские площадки, Из бруса, Деревянные, Taalo

Описание

МОНТАЖ ПРОИЗВОДИТСЯ СТРОГО НА РОВНУЮ ПОВЕРХНОСТЬ, БЕЗ УКЛОНОВ, БУГРОВ И ЯМ.

Цвет комплектующих может отличаться, отгружается из наличия на складе.

Надежная и долговечная детская игровая конструкция (конструктор) из древесины сибирской лиственницы для детской площадки в зонах общественного пользования: парки, скверы, дворы многоквартирных домов, территории детских садов, школ и торгово-развлекательных центров, коттеджные поселки. Поможет организовать интересный досуг детям и отлично сочетается с городским и природным ландшафтом.

Конструкция предназначена для детей от трех до четырнадцати лет, создает условия для общего физического развития ребенка, развития координации движений и ловкости, смелости и преодоления страха высоты, развивает чувство коллективизма в массовых играх, а игровые панели способствуют развитию логического мышления и воображения.

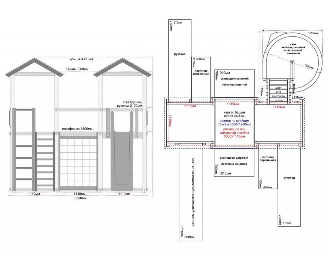
Основа детской игровой конструкции (конструктор) – две башни со статичным мостом «серия D». Конструкция оснащена двумя двускатными деревянными крышами, встроенным полом, пластиковым антивандальным скатом с превосходной скользящей поверхностью, антивандальным винтовым скатом с переходным мостиком, скалодромом, канатной лестницей с армированным канатом, двумя «П»-образными рукоходами, двумя деревянными лестницами. Для безопасности ребенка предусмотрены перила на лестнице, заборчики и ограждения над зонами препятствий (скат).

Выберете более подходящий для Вас цвет ската: желтый, зеленый, красный, синий.

Комплектация (обозначение габаритов – длина/ширина/высота):

  • каркас башни «серия D» 3500х1280х3000мм. (высота от уровня площадки 3000мм.) - 1ком.;
  • стойка центральная 80х40х2200мм. (длина/ширина/высота) - 2ком.;
  • платформа - пол встроенный 1200х940х60мм. (установка на высотах от уровня площадки 80мм. и 1500мм.) - 6ком.;
  • ограждение - забор длинный 1200х40х620мм. (высота от уровня платформы 700мм.) - 2ком.;
  • крыша деревянная двускатная полотно салатовое 1380х1280х470мм. (высота от уровня площадки 3360мм.) - 2ком.;
  • лестница-стремянка деревянная 1650х480х80мм. / 5 ступеней (установка на высоту от уровня площадки 1500мм.) - 2ком.; 
  • перила для лестницы деревянные 1650х40х340мм. (высота от уровня ступеней 600мм) - 2ком.; 
  • ограждение над скатом 1200х130х860мм. (высота от уровня платформы 700мм.) - 1ком.;   
  • скат пластиковый «Bronco» антивандальный 3270х580х570мм. (ширина ската внутри 400мм., высота борта 150мм.; установка на высоту от уровня площадки 1500мм.) - 1ком.;
  • мостик с ограждением для винтового ската 1200х990х780мм. (высота от уровня платформы 700мм.) - 1ком.;
  • скат пластиковый «винтовой» антивандальный 1500х1500х2000мм. (ширина ската внутри 450мм., высота борта 300мм.; установка на высоту от уровня площадки 1500мм.) - 1ком.;
  • рукоход «П»-образный деревянный 2200х570х2200мм. (установка на высоту от уровня площадки 2200мм.) - 2ком.;
  • скалодром широкий 1650х1010х80мм. / 12 камней (установка на высоту от уровня площадки 1500мм.) - 1ком.;
  • лестница канатная армированный канат 1650х1010х80мм. (установка на высоту от уровня площадки 1500мм.) - 1ком.;
  • анкер арматурный 800мм. (вбивается в основание площадки) - 8ком.;

Габариты конструкции: 5935х4000х3360мм. (длина/ширина/высота); S-23,7м²

Габариты площадки для установки конструкции с учетом зоны безопасности: 8935х7000мм. (длина/ширина); S-62,5м².

Для перевозки транспортной компанией: 

  • общий вес 824,6кг.; общий объем 7,1м³;
  • количество мест 36 (самое длинное место 3270мм., самое широкое место 1500мм., самое высокое место 1500мм.);
  • в жесткую обрешётку 1 место-пластиковый скат (вес 38кг., 3270х580х570мм., объем 1,1 м³.),1 место-пластиковый скат винтовой (вес 40кг., 2000х1500х1500мм., объем 4,5 м³.)

Материалы:

Каждая деревянная деталь детской игровой конструкции (конструктор) состоит из древесины сибирской лиственницы: клееный и сращенный брус лиственницы сечением 90х90мм.; клееный и сращенный брус лиственницы сечением 80х40мм., доска – планкен из лиственницы сечением 90х20мм. (камерная сушка, влажность 8-16%). Каждая деревянная деталь обработана в два слоя безопасным для детей покрытием – маслом для террасной доски и восковой лазурью «ADLER» (цвет «орех», «зеленое яблоко»), торцы деталей дополнительно запечатаны мастикой. Рекомендуем обновлять покрытие деревянных элементов конструкции (при естественном износе покрытия, один раз в 2-3 года) или проводить реставрацию отдельных конструктивных элементов (при механическом повреждении), необходимо подобрать по цвету масло для террасной доски, предназначенное для эксплуатации на улице, любого производителя.

Крепеж и подвесы из оцинкованной стали от европейских производителей обеспечивает надежное соединение каждого элемента конструкции.

Фурнитура от европейского производителя «КВТ» (скаты, сидения для качелей, игрушки, канаты, крепежи), надежная и долговечная, защищена от воздействия УФ излучения (не выгорает), влагостойкая и морозостойкая, диапазон эксплуатации от - 60°С до +60°С. Антивандальный пластиковый скат обладает отличной скользящей поверхностью, защитой от воздействия солнечных лучей (не греется, не выгорает), не образует статического напряжения.

Рекомендованная распределенная единовременная нагрузка: игровая платформа 350кг., статичный мост 350кг., деревянная лестница 100кг., скалодром 150кг., канатная лестница 150кг., рукоход 150кг, скат 150кг.

Подготовка к сборке, сборка:

До установки детской игровой конструкции (конструктор) необходимо подготовить поверхность детской площадки.

Для безопасной эксплуатации конструкции, площадка должна быть свободна от зеленых насаждений, сооружений и других конструкций, ровная, без перепадов уровня, без впадин и насыпей. Габариты площадки с учетом зоны безопасности длина 8435мм. ширина 6000мм., площадь площадки S-50,6м². Запрещено устанавливать конструкцию в зонах с повышенным риском провалов в грунте (болотистая местность, береговая линия водоемов, в непосредственной близости с оврагами и обрывами). 

Типы оснований: естественный грунт средней плотности и выше (Pd≥1,2г/см³), готовое асфальтобетонное основание, газон с дренажным основанием. Поверхность основания по крайним точкам конструкции длина 5935мм., ширина 4000мм., должна быть выровнена по горизонту, допустимый уклон поверхности 20мм на 10 погонных метров. Все элементы конструкции соприкасающиеся с поверхностью основания конструкции должны быть в единой плоскости. Необходимо бетонировать основание винтового ската – металлическая труба d120мм., дополнительно отдельные элементы конструкции необходимо зафиксировать арматурными анкерами.

Конструкцию возможно собрать самостоятельно (в паспорте указана очередность сборки элементов конструкции, в упаковках с отдельными конструктивными элементами прилагаются инструкции по сборке и метизы), или воспользуйтесь услугами наших профессиональных сотрудников.

Каждая детская игровая конструкция –  конструктор «трансформер», элементы конструкции возможно менять местами - отображать зеркально, при этом важно соблюдать особенности сборки конструкции, правила безопасной эксплуатации конструкции.

Для самостоятельной сборки понадобится: лестница-стремянка, измерительная рулетка, карандаш, киянка, уровень, шуруповерт, сверло d4мм., сверло или перо d10мм., набор бит с насадками «TORX» и «шестигранник», набор гаечных ключей, при установке на бетонное основание необходим перфоратор для сверления отверстий, оборудование для бетонирования.

Адрес пункта выдачи в Бийске: ул Мамонтова, дом 18.

Самовывоз в Бийске
По адресу: Бийск улица Петра Мерлина 63 Корпус 4

Доставка без выгрузки по Бийску 2 000 

Установка 224 370 

По QR коду

Банковской картой на сайте

Рассрочка -- от Тинькофф

Безналичный платеж для юр.лиц

ВозвратВ течение 14 дней

Гарантия 12 месяцев

Также дополнительно заказывают
Продукция серии серия D
Похожие изделия